Edificio Astillero
Project: Moarqs + BMA
Construction Management: Moarqs: Ignacio Montaldo, Arch. Christian Dragan, Arch.
Construction Management Structure phase: Roberto Szraiber, Arch. Cesar Piermarini Arch. Fernando Vazquez; Arch.
Developer: CMNV Comunidad de invercion
Developer Management: Matias Alba, Arch.
Construction: EDFAN Sebastian Mato, Eng. and Marino Mato, Eng.
Structure: Sebastian Berdichevsky, Eng.
Electricity: Nicolas Vignaroly, Eng.
Plumbing: Jorge Labonia, Eng.
Illumination: Piedra Iluminiacion.
Landscape: Grupo Landscape. Cora Burgin, Arch and Sebastian Mouzo, Arch.
Graphic design: Nico Risso Dg.
Thermomechanic: Mario Hernandez, Eng.
Plot area: 1.500m2
Construction area: 15.000m2
Photograhpy: Javier Agustin Rojas
Project date: 2017-2018
Construction period: 2019-2026
Address: Azopardo 1337, C1107ADW Cdad. Autónoma de Buenos Aires
Coordinates: -34.623230, -58.366719
Status: Under construction
El proyecto Astillero desarrolló una superficie construida total de 14.320 m² sobre un lote de 1.442 m², con un frente de 30 metros y un fondo de 48 metros, ubicado en la calle Azopardo 1337, en la Ciudad Autónoma de Buenos Aires. La intervención se implanta sobre una propiedad de principios del siglo XX, de la cual se conserva exclusivamente la fachada original, perteneciente a un antiguo astillero vinculado históricamente a la actividad portuaria del Río de la Plata. La propuesta arquitectónica establece, a partir de esta condición, una operación de contraste y continuidad entre la preexistencia patrimonial y un nuevo edificio de residencias, donde la convivencia entre lo histórico y lo contemporáneo constituye la premisa central del proyecto.
La fachada histórica se preserva como elemento urbano significativo, mientras que el nuevo volumen se expresa con un lenguaje contemporáneo, asociado a una materialidad sintética y austera, donde el hormigón y una envolvente de vidrio con parasoles verticales de aluminio definen la expresión arquitectónica del edificio. Esta operación arquitectónica articula la identidad histórica del barrio de San Telmo desde una lógica contemporánea, inscribiendo al proyecto en una condición de transición urbana entre distintas escalas, tiempos y formas de habitar. La localización del edificio, entre la Avenida Juan de Garay y la calle Cochabamba, lo sitúa en un sector estratégico del corredor sur de la ciudad, con excelente conectividad y proximidad al Microcentro, a San Telmo y al frente costero.
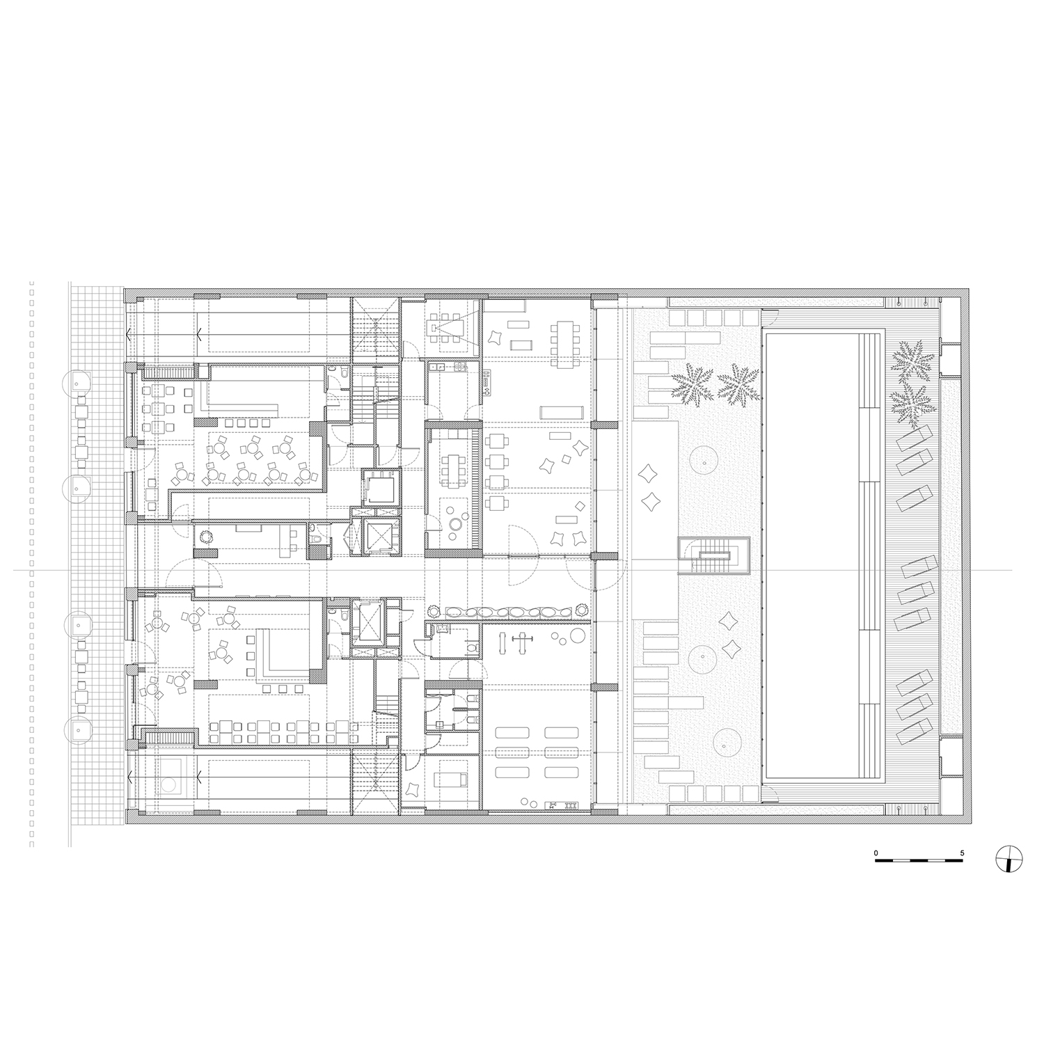
La calle Azopardo conserva el empedrado característico de Buenos Aires, aportando una fuerte identidad urbana al entorno inmediato, mientras que la cercanía al Parque Lezama refuerza la relación del proyecto con uno de los espacios verdes más relevantes del área, consolidando un contexto de alta calidad ambiental y valor patrimonial. El edificio se concibe como un desarrollo de uso mixto. En el nivel de subsuelo se dispondrán las cocheras reglamentarias, mientras que la planta baja alojará locales comerciales, favoreciendo la activación del espacio público y la relación directa con la calle.
En los niveles superiores se desarrollarán unidades de vivienda apto profesional, dando respuesta a la diversidad de usos y modalidades de ocupación que demanda la zona. La propuesta se define como un edificio austero, simple, íntegro y sólido, donde la claridad estructural, la lógica constructiva y la coherencia material constituyen los principales atributos del proyecto. El conjunto contará con una amplia variedad tipológica que permitirá flexibilidad de uso y adaptación a distintos perfiles de usuarios, con estudios de hasta 30 m², monoambientes de entre 30 y 40 m², unidades de dos ambientes de 55 a 60 m², y unidades tipo dúplex de hasta 70 m².















