PLZ3120
Comitente: Colonial Victoria Desarrolladora
Arquitecto: Ignacio Montaldo, Arq.
Colaboradores: Nicolás Podestá, Laura Palma, Eiko Vetter, Christian Dragan, Arqs.
Estructura: Germán Comas, Ing.; Fernando Saludas, Ing.
Estudio de suelos: Ingesoil S.A.
Planimetría y altimetría: Roberto Gieschen, Agrim.
Instalación eléctrica: Fernando Massa, Ing.
Iluminación: Verónica La Cruz, Arq.
Climatización (HVAC): Sara Noemí Ventura.
Empresa constructora: Ormigon
Superficie del lote: 134,60 m²
Superficie construida: 990,90 m²
Fecha de proyecto: 2024
Fecha de construcción: 2025–2026
Dirección: Plaza 3120, C1430 Villa Urquiza, Ciudad Autónoma de Buenos Aires
Coordenadas: -34.563230, -58.480840
Estado: En construcción
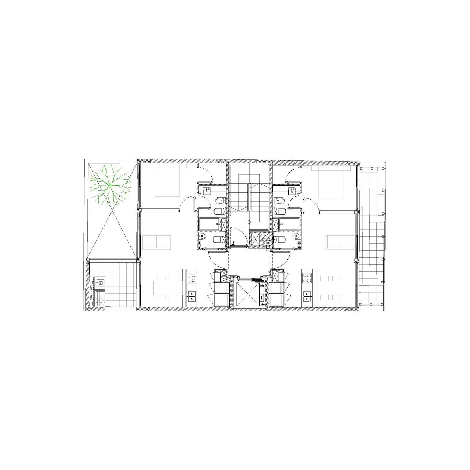
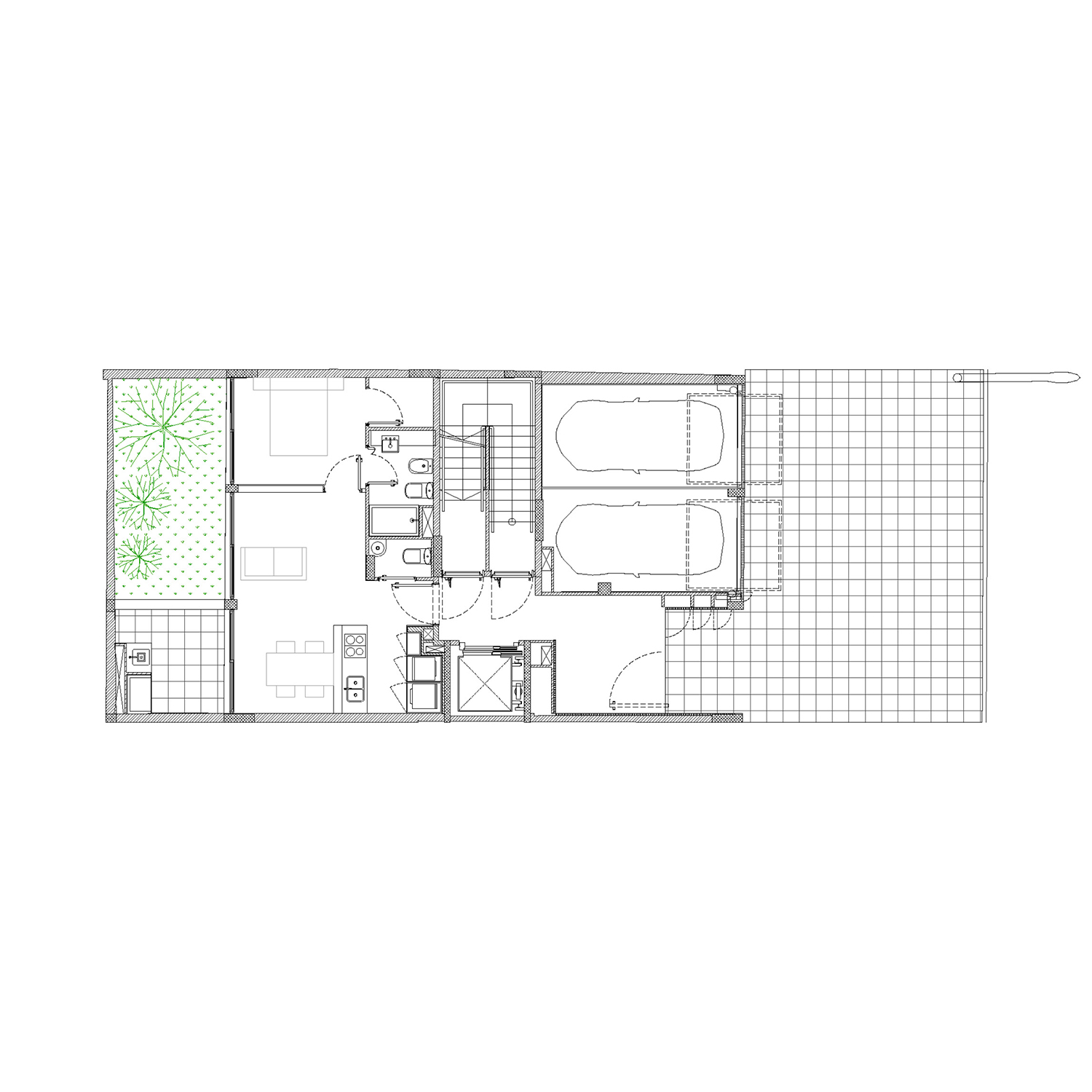
El proyecto es un edificio de vivienda colectiva de mediana escala ubicado en un lote en la calle Plaza 3120, entre Iberá y Tamborini, en la Ciudad Autónoma de Buenos Aires. Cuenta con catorce unidades funcionales, organizadas en un subsuelo, planta baja y siete pisos altos.
La estructura resistente se resolvió íntegramente en hormigón armado. Las losas, vigas y columnas se dejaron vistas, conformando un sistema estructural expresivo que se manifiesta tanto en el frente como en el contrafrente del edificio, y que participa activamente de su definición arquitectónica y material. En la fachada principal, un balcón corrido acompaña los ambientes principales de las unidades como expansión exterior y que actúa como elemento de control solar. La baranda se resolvió como un plano continuo que excede en ancho y longitud las dimensiones del balcón, configurando una pantalla discontinua que define la expresión formal del edificio. Este recurso refuerza la lectura horizontal del conjunto y establece una relación directa entre estructura, cerramiento y forma. En el contrafrente, cada unidad cuenta con una terraza exterior de aproximadamente 3,00 x 3,00 m, que conforma un ambiente extra del departamento y mejora la relación con el exterior. El resto de las carpinterías del cerramiento funcionan como balcones franceses, ubicándose dentro del marco definido por la estructura de hormigón, reforzando la idea de un volumen estructural claramente delimitado. El edificio presenta visuales abiertas hacia las vías del ferrocarril y el pequeño parque lineal que se conforma en el frente del lote. La orientación noreste garantiza un alto nivel de confort ambiental tanto en invierno como en verano, optimizado por el alero generado por el balcón corrido, que controla la radiación solar directa y mejora el desempeño térmico de las unidades.
















